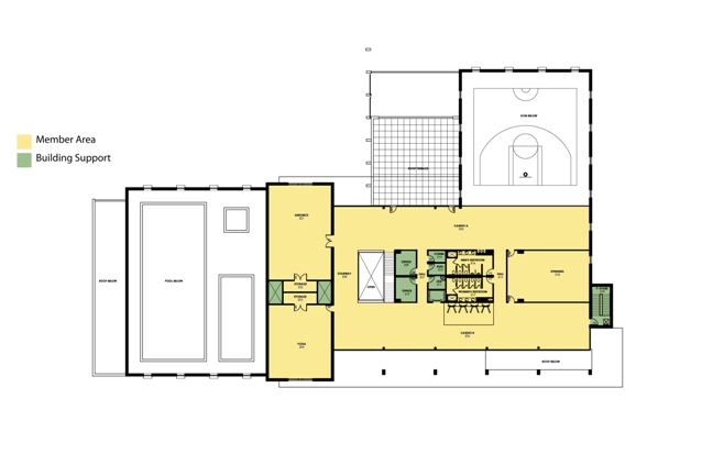
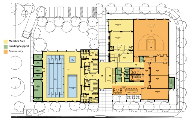
Austin Parks and Recreation Department
Two-story, 37,000 sq. ft. insulated concrete sandwich panel tilt-wall building with exposed structural beams and columns
- Foundation: Drilled piers with concrete slab on grade
- Framing: Structural steel
- Floor structure designed to reduce vibration