Frank Lam and Associates, Inc.
Consulting Structural Engineers at Austin Texas
Home
Services
Projects
Contact Us
Post navigation
←
Previous
Next
→
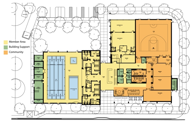
YMCA North Austin Recreation Center